Projektauszug
2012 I Projektentwicklung Autobeherbergungsstätten I Bad Driburg in Kooperation mit PBN* Entwurf & Planung der Architektur Entwurf & Planung der Innenarchitektur Ausarbeitung nachhaltiges haustechnisches Konzept Machbarkeitsstudie Finanzinvestoren-Akquise
projektentwicklung
2020 I Neubau Villa I Wedemark es - in Kooperation mit SEYSTA* Projektplanung Innenarchitektur Projektleitung Innenarchitektur
interior design wohnen
2020 I Neubau Wohn- & Geschäftshaus I Celle es - in Kooperation mit SEYSTA* Projektplanung Innenarchitektur
interior design wohnen
2020 I Bäderplanung Apartmenthaus I Bad Nenndorf es - in Kooperation mit SEYSTA* Projektplanung Innenarchitektur Projektleitung Innenarchitektur
interior design wohnen
2016 I Umbau diverser Einfamilienhäuser I Kreis Hannover selbständig Projektplanung Entwurf, Ausschreibung, Bauleitung
interior design wohnen
2015 I Umbau Lehrküche & Multifunktionsraum I Hannover es - freiberuflich für TW* Projektplanung Innenarchitektur Projektleitung Innenarchitektur Ausschreibung Bauüberwachung
interior design lehrküche
2015 I Sanierung Wohnanlage (denkmalgeschützt) I Hannover es - freiberuflich für TW* Projektplanung Projektleitung Ausschreibung Objektüberwachung
sanierung wohnhaus
2013 I Konzept Fresh-Up *** Business-Hotel I Hannover Konzeption & Entwurf Zimmer, Restaurant, öffentl. Bereiche Material- & Farbkonzepte
interior design hotel
2013 I Entwurf **** Hotel- Restaurant I Kassel es - freiberuflich für PBN* Konzeption & Entwurf Innenarchitektur Material- & Farbkonzepte
interior design gastro
2013 I Neubau Einfamilienhaus & Innenarchitektur I Kreis Peine Projektplanung Entwurf, Ausschreibung, Bauleitung Küchen- & Badkonzepte
neubau einfamilienhaus
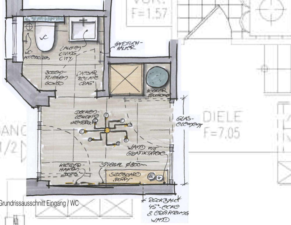
2015 I Umbau Bad Reihenhaus I Hannover Projektplanung Entwurf, Ausschreibung, Bauleitung
interior design wohnen
2011 I Ausbau **** Hotel- Restaurant I Leipzig es - freiberuflich für PBN* Entwurf & Planung Innenarchitektur künstlerische Bauleitung
interior design gastro
2012 I Neubau 4*Hotel I Zürich es - freiberuflich für PBN* Projektplanung Innenarchitektur Projektleitung Innenarchitektur Ausschreibung künstlerische Bauleitung
interior design hotel / gastro
2012 I Neubau ****City-Hotel I Berlin es - freiberuflich für PBN* Projektplanung Innenarchitektur Projektleitung Innenarchitektur Ausschreibung künstlerische Bauleitung
interior design hotel
2020 I Konzept Umbau Einfamilienhaus I Hannover Entwurf Innenarchitektur
interior design wohnen
es-innenarchitektur Innenarchitektin Esther Sauskojus Trojanstr. 16 I D-30177 Hannover Mobil: +49(0)511 708 17 447 eMail: mail@es-ia.de Bürokernzeiten: Mo - Fr. 9:00Uhr - 15:00Uhr
kontakt
Projektliste hotel & gastro Projektliste hotel & gastro Projektliste wohnen & hochbau Projektliste wohnen & hochbau Projektliste büro & sonstiges Projektliste büro & sonstiges
*Kürzelerläuterung: FA = Förster Architektur I Hannover HKP = HKP Architekten+Stadtplaner GmbH I Hannover ID = Intecta Design I Hannover LIA = Ludewig Innenarchitektur I Hannover MA = Michelmann-Architekt GmbH I Hannover MMP = Mangion Mangion & Partners I Ta´Xbiex I Malta PBN = Planungsbüro Niehaus I Hildesheim SEYSTA = Seyfarth Stahlhut Partner mbB I Hannover VER = Versicherungskonzern I Hannover TW = Többen Woschek Architekten I Hannover TWK = Többen Woschek Kresic Architekten I Hannover
2021 I Neubau Einfamilienhaus I Hannover es - in Kooperation mit SEYSTA* Projektplanung Innenarchitektur
interior design wohnen
2020 I Neubau Apartmenthaus I Bad Nenndorf es - in Kooperation mit SEYSTA* Entwurf Innenarchitektur Projektleitung Innenarchitektur
interior design wohnen
2020 I Ausbau neue Bürofläche als Pilotfläche I Hannover dn - angestellte Tätigkeit VER* ca. 1.400m² (im Betrieb) bauherrenseitige Projektleitung, Ausschreibung, Bauleitung Belegung-, Akustik, Lichtplanung
interior design büro
2020/21 I Umbau Vorstandsbereich I Hannover dn - angestellte Tätigkeit VER* ca. 1.500m² (im Betrieb) bauherrenseitige Projektleitung
interior design büro
2019 I Ausbau Mietfläche nach neuem AP-Konzept I Dresden dn - angestellte Tätigkeit VER* ca. 300m² bauherrenseitige Projektleitung, Ausschreibung Akustikgewerke Belegung-, Akustik, Lichtplanung
interior design büro
2019 I Ausbau neue Mietfläche als Projektfläche I Hannover dn - angestellte Tätigkeit VER* ca. 3.800m² mieterseitige Projektleitung, Belegung-, Akustik-, Beleuchtungsplanung
interior design büro
2018 I Ausbau neue Mietfläche nach neuem AP-Konzept I Berlin dn - angestellte Tätigkeit VER* ca. 3.400m² mieterseitige Projektleitung Ausschreibung, Bauleitung akustische Gewerke Belegungsplanung Akustik-, Beleuchtungsplanung
interior design büro
2017 I Küchen- & Kantinen- sanierung I München dn - angestellte Tätigkeit VER* bauherrenseitige Projektleitung Ausschreibung Bauleitung Umbau im Betrieb
kantinen- & küchenumbau
2017 I Umbau Büroflächen nach neuem AP-Konzept I Hannover dn - angestellte Tätigkeit VER* ca. 300 + 400m² (im Betrieb) bauherrenseitige Projektleitung, LPH 1 - 9 Belegung-, Akustik, Lichtplanung
interior design büro
2016 I Sanierung von Atrium- Putzflächen I Hannover dn - angestellte Tätigkeit VER* ca. 1.200m² Putzfläche im Betrieb bauherrenseitige Projektleitung, Ausschreibung, Bauleitung
putzsanierung
2017 I Ausbau neue Mietfläche als Projektfläche I Hannover dn - angestellte Tätigkeit VER* ca. 2.500m² mieterseitige Projektleitung Belegungsplanung Akustikplanung
interior design büro
2021 I Fresh UP Einfamilienhaus I Hannover (Kreis) Entwurf & Planung Innenarchitektur Projektleitung Innenarchitektur
2021 / 22 I Umbau Ferienhaus I Flensburg es - in Kooperation mit TWK* Entwurf & Planung Innenarchitektur
2022 / 23 I Umbau Restaurant I Hannover (Kreis) Entwurf & Planung Innenarchitektur Projektleitung Innenarchitektur
2021 / 22 I Umbau Vorstandsbüros I Hannover Ausbaukonzeption
interior design büro
interior design wohnen
interior design gastro
interior design wohnen
aktuelles Jobs
2021 / 22 I Umbau Imbiss I Hannover (Kreis) Entwurf & Planung Innenarchitektur Projektleitung Innenarchitektur
interior design gastro
2022 I Umbau Einfamilienhaus I Hannover (Kreis) Entwurfskonzeption Innenarchitektur
interior design wohnen
2022 - 24 I Neubau Verwaltungs- gebäude I Hildesheim Entwurf & Planung Innenarchitektur Begleitung Changeprozess Nutzerbedarfserhebung -- laufendes Projekt --
interior design büro
2022 - 24 I Ausbau Restaurant I Hildesheim Entwurf & Planung Innenarchitektur Projektleitung Innenarchitektur -- laufendes Projekt --
interior design gastro
2022 / 23 I Mietflächenausbau Büro I München in Kooperation mit dnpm Ausbaukonzeption WorkplaceManagement -- laufendes Projekt --
interior design büro
2020 I Neubau ***Hotel I Ludwigsburg freiberuflich für PBN* Projektplanung Innenarchitektur Projektleitung Innenarchitektur Ausschreibung künstlerische Bauleitung
interior design hotel
projekte
Trojanstr. 16 30177 hannover +49(0)511 708 17 447 mail@es-ia.de
create develop manage
Büro- Mo - Fr kernzeiten: 9:00 - 15:00Uhr
DE / EN DE / EN DE / EN
DE / EN DE / EN DE / EN